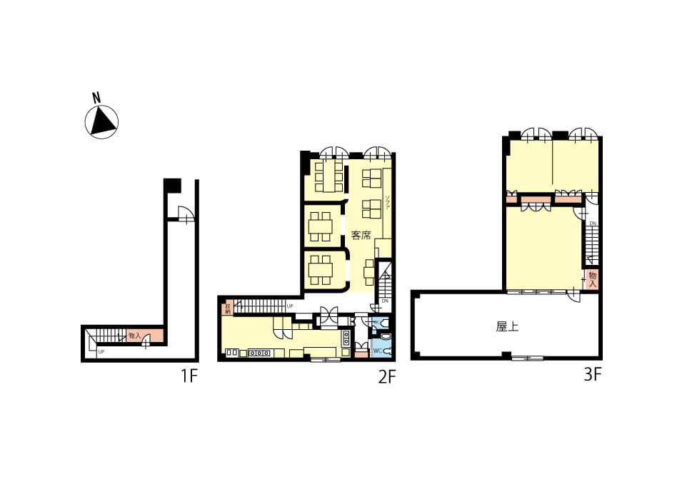
- 貸店舗
- 長野県松本市深志2丁目みどりビル2F.3F2F.3F
賃料
32万円
共益費:
20000円(税込)
礼金:
1ヶ月
敷金:
2ヶ月
松本駅徒歩圏の商業エリアの物件です
所在地
松本市深志2丁目
建物名
みどりビル2F.3F
賃料
32万円
税金
礼金
1ヶ月
敷金
2ヶ月
保証金権利金等
共益費
20000円(税込)
貸階数
2.3階
総階数(地上)
3階
構造
鉄骨造
完成年月日
1978年1月
専有面積
146.21m2/44.22坪
引渡/入居日
即可能
駐車場
無
設備
トイレ・エアコン・収納スペース・居抜き・リフォーム済み・飲食店可・24時間利用可・プロパンガス・冷蔵庫
交通
電車:篠ノ井線線松本駅 300m 徒歩5分
備考
居抜き飲食店物件。厨房設備、ソファーやテーブルなどの備品もそのままお使いいただけます。
グリーストラップ、ダクトの定期清掃は貸主にて手配します。
不要な備品の撤去相談可能。
水道料金は貸主より請求。電気・ガスは事業者と直接契約。
保証会社:個人契約は必須 法人契約でも契約をお願いする場合があります。契約時初回保証料:月額賃料の150%、年間保証委託料:月額賃料の10%(最低保証料10,000円)/年,月額手数料:440円
グリーストラップ、ダクトの定期清掃は貸主にて手配します。
不要な備品の撤去相談可能。
水道料金は貸主より請求。電気・ガスは事業者と直接契約。
保証会社:個人契約は必須 法人契約でも契約をお願いする場合があります。契約時初回保証料:月額賃料の150%、年間保証委託料:月額賃料の10%(最低保証料10,000円)/年,月額手数料:440円
管理番号
取引態様
媒介
最終更新日
2026-04-16
物件番号
450036
お問い合わせ
下記フォームに必要事項を入力後、送信ボタンを押してください。



































